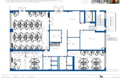
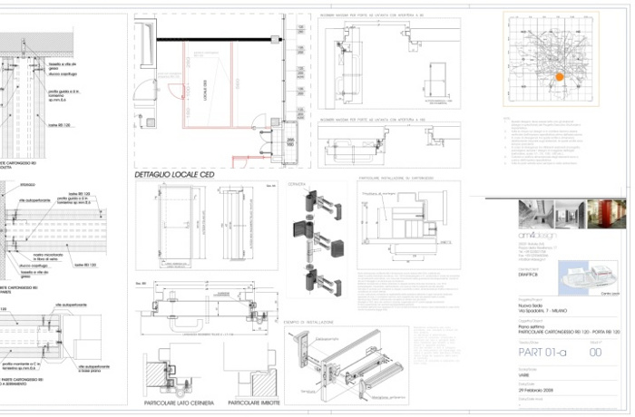
LARES

RISTRUTTURAZIONE SEDE

Milano

1000 Mq.

Analisi e revisione dei fabbisogni organizzativi, valutazione dell'edificio, studio di fattibilità, pianificazione degli spazi, disegno degli interni, progettazione impiantistica, project management e direzione lavori per l’allestimento della nuova sede del Gruppo in Milano.

NEWS

am4design s.r.l   Piazza della Resistenza, 15    20021 Bollate (MI)   Tel. +39 023501758   P.I. 05042390962  Mail info@am4design.it  Web www.am4design.it


INFORMATIVA sulla PRIVACY

TERMINI E CONDIZIONI D'USO

 

 

 

 

Usiamo i cookies

Utilizziamo i cookie sul nostro sito Web. Alcuni di essi sono essenziali per il funzionamento del sito, mentre altri ci aiutano a migliorare questo sito e l'esperienza dell'utente (cookie di tracciamento). Puoi decidere tu stesso se consentire o meno i cookie. Ti preghiamo di notare che se li rifiuti, potresti non essere in grado di utilizzare tutte le funzionalità del sito.