Restyling Villa Unifamiliare
Ristrutturazione completa per una villa moderna e funzionale.
Il Cliente, individuato l'immoblie ed il terreno di suo interesse, ha incaricato studio Am4design per la sua completa ristrutturazione. Dato che l'edificio presentava una distribuzione degli spazi interni non adatta alle esigenze di una famiglia numerosa, è stato necessario intervenire per adattarla alle esigenze contemporanee.
Il rifacimento degli impianti idraulici ed elettrici, l'isolamento termico e acustico, la scelta di nuove finiture per pavimenti e rivestimenti, sono tra gli interventi che hanno permesso di creare ambienti efficienti e confortevoli, adeguandoli al proprio stile di vita.
Sostituire vecchi infissi, installare pannelli solari e ottimizzare l’isolamento termico ha ridotto i consumi e l’impatto ambientale.
Interventi mirati, come la riqualificazione energetica o il restauro di elementi architettonici, non solo ne migliorano la vivibilità ma incrementano il suo valore sul mercato.
FASI PROGETTUALI
- Sopralluogo, Analisi e valutazioni preliminari
- Studio di fattibilità_Budget preliminare e tempistiche di progetto
- Progettazione Architettonica_Design degli interni_Rendering / Viste 3D
- Pratiche Edilizie per l'ottenimento dei permessi _ Permesso di Costruire
- Direzione Lavori
- Esecuzione dei lavori_Demolizioni_Interventi strutturali_ impianti elettrici, idraulici e fotovoltaici_finiture
- Progetto del verde
- Collaudo, chiusura lavori e certificazioni
- Aggiornamento Catastale
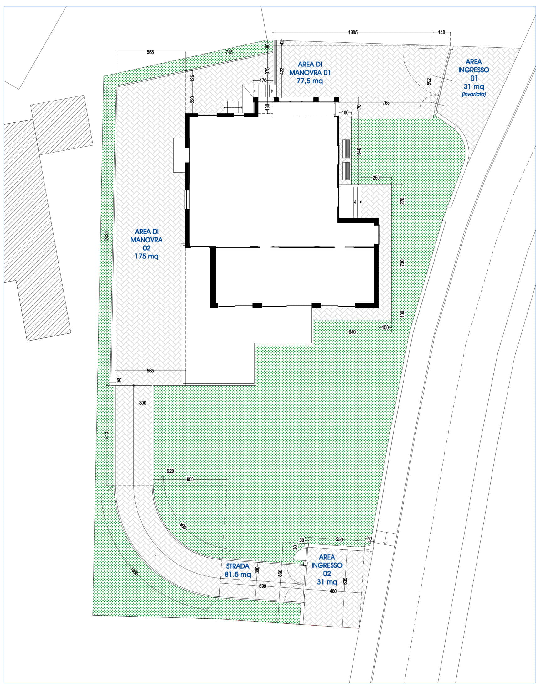
Superficie: 800 mq
RENDERING / 3D di PROGETTO



STATO PREEISTENTE
PROGETTO ARCHITETTONICO



LAYOUT DEGLI INTERNI

CANTIERE
FINE LAVORI
..altre immagini per approfondire
Villa Varese
tetto.jpg
https://www.am4design.it/images/sampledata/residenziale/Varese/tetto.jpg
villa_cant_03.jpg
https://www.am4design.it/images/sampledata/residenziale/Varese/villa_cant_03.jpg
villa_cant_01.jpg
https://www.am4design.it/images/sampledata/residenziale/Varese/villa_cant_01.jpg
villa_cant_08.jpg
https://www.am4design.it/images/sampledata/residenziale/Varese/villa_cant_08.jpg
villa_cant_010.jpg
https://www.am4design.it/images/sampledata/residenziale/Varese/villa_cant_010.jpg
villa_cant_04.jpg
https://www.am4design.it/images/sampledata/residenziale/Varese/villa_cant_04.jpg
villa_cant_07.jpg
https://www.am4design.it/images/sampledata/residenziale/Varese/villa_cant_07.jpg
villa_foto04.jpg
https://www.am4design.it/images/sampledata/residenziale/Varese/villa_foto04.jpg
villa_foto03.jpg
https://www.am4design.it/images/sampledata/residenziale/Varese/villa_foto03.jpg
Italian (IT)
English (UK) 